Paradise Valley Town Council unite around Andaz Scottsdale Resort & Bungalows development case
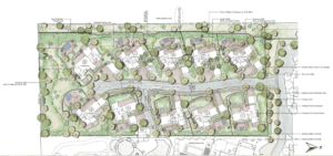
Andaz Scottsdale Resort & Bungalows application set for May 11 public hearing By Terrance Thornton | Digital Free Press Paradise Valley Town Council was presented the latest development preparations afoot at the Andaz Scottsdale Resort & Bungalows during an April 27 work study discussion where local leaders are lockstep on two general ideas as municipal … Continue reading Paradise Valley Town Council unite around Andaz Scottsdale Resort & Bungalows development case
Copy and paste this URL into your WordPress site to embed
Copy and paste this code into your site to embed